たつの市 龍野町末政(本竜野駅) 事業用地
☆これだ!!という物件☆お探しの物件を全てお見せします!『資料請求』より来店・見学予約可能!
1 / 10
価格
1億935万円
土地面積
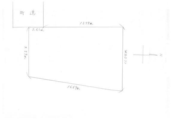
1446.00㎡
最適用途
事業用地
坪数
437.41坪
所在地
兵庫県たつの市龍野町末政
兵庫県たつの市龍野町末政
JR姫新線(姫路~佐用)「本竜野駅」徒歩13分
お問い合わせ先
ハウスドウ播磨太子 (株)小川電工
ハウスドウ播磨太子 (株)小川電工
人気のこだわり条件
アピールポイント
周辺地図
兵庫県たつの市龍野町末政 周辺の地図
周辺施設
セブンイレブン 龍野末政店 距離:350m
ゴダイドラッグ 本竜野駅前店 距離:510m
ローソン 龍野片山店 距離:570m
物件概要
物件名
たつの市 龍野町末政(本竜野駅) 事業用地
交通
JR姫新線 / 本竜野駅 徒歩13分
所在地
兵庫県たつの市龍野町末政
物件種目
土地
価格
1億935万円
坪単価
25万円
借地期間・地代
(月額)
(月額)
-
権利金
-
敷金 / 保証金
- / -
維持費等
-
その他一時金
なし
備考
太子・龍野の不動産の事ならお任せください!無料相談も承っております!物件はもちろん、周辺環境やお店の情報などなんでもお尋ねください。スタッフが親身におこたえします!こんな物件探してる人におすすめ!・事業用地・コンビニが近く、お買い物が気軽に!・都市機能と自然が融合した価値ある住環境!
特記事項
バス・トイレ
-
キッチン
-
設備・サービス
電気
その他
土地面積
1,446.00m²(実測)
坪数
437.41坪
最適用途
事業用地
私道負担面積
なし
土地権利
所有権
都市計画
市街化区域
用途地域
工業地域
地勢
-
建ぺい率
60%
容積率
200%
接道状況
-
地目
雑種地
国土法届出
-
セットバック
条件等
-
現況
更地
引渡し(可能時期/方法)
相談 / 更地渡
物件番号
1034108593
掲載会社 管理番号
4107225
取引態様
媒介
情報公開日
2026年2月26日
次回更新予定日
2026年4月12日
この物件の取扱い会社:ハウスドウ播磨太子 (株)小川電工
不動産のことならなんでも当社にお任せください!
住所
兵庫県揖保郡太子町太田1563-5
地図
代表者
小川 法仁
電話/FAX
079-280-9922
交通
JR山陽本線/はりま勝原駅 徒歩30分
営業時間
9:00~18:00
定休日
水曜日 年末年始、GW、夏季休暇
免許番号
兵庫県知事免許(1)第451762号
所属団体
(一社)兵庫県宅地建物取引業協会会員
(公社)近畿地区不動産公正取引協議会加盟
(公社)近畿地区不動産公正取引協議会加盟






