たつの市 神岡町大住寺(東觜崎駅) 住宅用地
大通り沿いにつき前面道路広々♪、事業用にも居住用にもおすすめです。何なりと御相談ください!
1 / 3
価格
580万円
土地面積
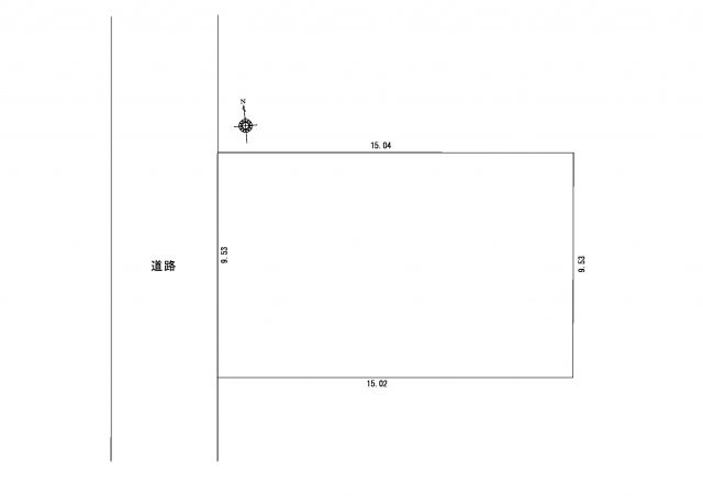
148.13㎡
最適用途
住宅用地
坪数
44.80坪
所在地
兵庫県たつの市神岡町大住寺
兵庫県たつの市神岡町大住寺
JR姫新線(姫路~佐用)「太市駅」徒歩9分
お問い合わせ先
(株)香川不動産
(株)香川不動産
人気のこだわり条件
アピールポイント
周辺地図
兵庫県たつの市神岡町大住寺 周辺の地図
物件概要
物件名
たつの市 神岡町大住寺(東觜崎駅) 住宅用地
交通
JR姫新線 / 東觜崎駅 徒歩9分
所在地
兵庫県たつの市神岡町大住寺
物件種目
土地
価格
580万円
坪単価
12.95万円
借地期間・地代
(月額)
(月額)
-
権利金
-
敷金 / 保証金
- / -
維持費等
-
その他一時金
-
備考
-
特記事項
バス・トイレ
-
キッチン
-
設備・サービス
上水道、下水道、プロパンガス
その他
土地面積
148.13m²(公簿)
坪数
44.80坪
最適用途
住宅用地
私道負担面積
なし
土地権利
所有権
都市計画
市街化区域
用途地域
1種住居
地勢
-
建ぺい率
60%
容積率
200%
接道状況
北・南東・二方道路
地目
宅地
国土法届出
-
セットバック
条件等
-
現況
建物有
引渡し(可能時期/方法)
即時 / 相談
物件番号
6990167589
掲載会社 管理番号
-
取引態様
専任媒介
情報公開日
2026年4月2日
次回更新予定日
2026年4月16日
この物件の取扱い会社:(株)香川不動産
賃貸・売買問わず全てのお客様に対し全力でご対応させて頂きます!
住所
兵庫県揖保郡太子町立岡441-1、2B
地図
代表者
香川 隼人
電話/FAX
079-280-7531
交通
JR山陽本線/網干駅 徒歩25分
営業時間
10:00~19:00
定休日
年中無休
免許番号
兵庫県知事免許(1)第451785号
所属団体
(一社)兵庫県宅地建物取引業協会会員
(公社)近畿地区不動産公正取引協議会加盟
(公社)近畿地区不動産公正取引協議会加盟






