相生市 那波東本町(相生駅) の売作業所
1 / 6
価格
2,200万円
所在地
兵庫県相生市那波東本町
建物面積
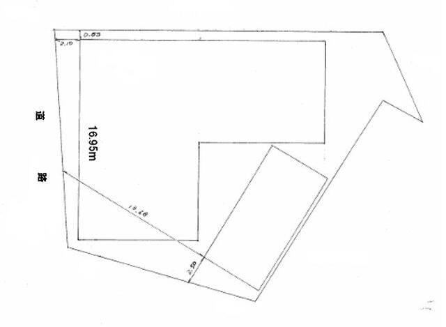
320.54㎡
土地面積
504.38㎡
築年数
1991年3月(築35年2ヶ月)
兵庫県相生市那波東本町
お問い合わせ先
(株)身野建設
(株)身野建設
人気のこだわり条件
アピールポイント
周辺情報
兵庫県相生市那波東本町 周辺の地図
物件情報
物件名
相生市 那波東本町(相生駅) の売作業所
交通
所在地
兵庫県相生市那波東本町
物件種別
売その他|売作業所
価格
2,200万円
管理費等
-
修繕積立金
-
借地期間・地代(月額)
-
権利金
-
敷金・保証金
- / -
維持費等
-
その他一時金
-
建物名・部屋番号
物件種目
売その他|売作業所
使用部分面積
土地面積
504.38m²(公簿)
間取り
-
階建 / 階
1階建
築年月
1991年3月(築35年2ヶ月)
建物構造
都市計画
用途地域
鉄骨造
建ぺい率
市街化区域
容積率
準工業
駐車場
60%
バイク置き場
200%
駐輪場
有 無料
土地権利
有 無料
私道負担面積
有 無料
接道状況
所有権
地目
なし
地勢
西 5.9m 公道
国土法届出
宅地
総戸数
平坦
備考
-
エネルギー消費性能
-
断熱性能
-
目安光熱費
-
リフォーム履歴
リノベーション履歴
条件等
-
現況
使用中
取引態様
売主
仲介手数料
-
引渡可能時期
相談
物件番号
6989773408
掲載会社 管理番号
-
情報公開日
2026年3月6日
次回更新予定日
2026年5月1日
この物件の取扱い会社:(株)身野建設
建てる時も、建てた後も。心からの安心を。
住所
兵庫県相生市本郷町5ー1
地図
代表者
身野 健太
電話/FAX
0791-23-5571
交通
JR山陽本線/相生駅 徒歩1分
営業時間
10:00~18:00
定休日
未設定 年末年始、GW、夏季休暇
免許番号
兵庫県知事免許(7)第550088号
所属団体
(一社)兵庫県宅地建物取引業協会会員
(公社)近畿地区不動産公正取引協議会加盟
(公社)近畿地区不動産公正取引協議会加盟
(株)身野建設 へお問い合わせはこちら
条件の近い物件
兵庫県たつの市揖西町南山1丁目 住宅用地
兵庫県たつの市揖西町南山1丁目
JR山陽本線(姫路~岡山)「竜野駅」徒歩43分
JR山陽本線(姫路~岡山)「相生駅」徒歩57分
JR姫新線(姫路~佐用)「本竜野駅」徒歩85分
宍粟市 山崎町須賀沢(播磨新宮駅) 住宅用地
兵庫県宍粟市山崎町須賀沢
宍粟市 波賀町上野 の売倉庫
兵庫県宍粟市波賀町上野






