【都会より断然お得!】赤穂市・たつの市・相生市・宍粟市・上郡町・佐用郡・太子町でのびのび子育てを叶える中古戸建と光熱費ゼロ計画 「子育ては自然豊かな場所で」「でも、経済的な負担は抑えたい」 2025.07.30
中古一戸建て 赤穂市 塩屋(播州赤穂駅) 2階建 5LDK 1749万円 / 5LDK 兵庫県赤穂市塩屋 JR赤穂線「播州赤穂駅」徒歩28分 建物面積:134.97㎡/ 土地面積:179.93㎡/ 築年数:築36年9ヶ月(1989年7月)
中古一戸建て 佐用郡佐用町 平松(播磨徳久駅) 2階建 4LDK 598万円 / 4LDK 兵庫県佐用町平松 JR姫新線(姫路~佐用)「播磨徳久駅」徒歩58分 建物面積:158.10㎡/ 土地面積:1090.69㎡/ 築年数:築51年5ヶ月(1974年11月)
中古一戸建て 相生市 大谷町(相生駅) 2階建 7SLDK 2999万円 / 7SLDK 兵庫県相生市大谷町 JR山陽本線(姫路~岡山)「相生駅」徒歩37分 建物面積:275.03㎡/ 土地面積:992.00㎡/ 築年数:築39年1ヶ月(1987年3月)
中古一戸建て 赤穂市 中広(播州赤穂駅) 平屋建 4SDK 500万円 / 4SDK 兵庫県赤穂市中広 JR赤穂線「播州赤穂駅」徒歩27分 建物面積:96.18㎡/ 土地面積:264.12㎡/ 築年数:築46年10ヶ月(1979年6月)
中古一戸建て 宍粟市 山崎町上比地(播磨新宮駅) 2階建 6SDK 1899万円 / 6SDK 兵庫県宍粟市山崎町上比地 JR姫新線(姫路~佐用)「播磨新宮駅」徒歩119分 建物面積:177.59㎡/ 土地面積:357.33㎡/ 築年数:築37年3ヶ月(1989年1月)
中古一戸建て 相生市 緑ケ丘2丁目(相生駅) 2階建 4LDK 1449万円 / 4LDK 兵庫県相生市緑ケ丘2丁目 JR山陽本線(姫路~岡山)「相生駅」徒歩33分 建物面積:91.08㎡/ 土地面積:131.11㎡/ 築年数:築31年2ヶ月(1995年2月)
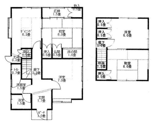
中古一戸建て 赤穂市 加里屋(播州赤穂駅) 2階建 5DK 470万円 / 5DK 兵庫県赤穂市加里屋 JR赤穂線「播州赤穂駅」徒歩17分 建物面積:84.00㎡/ 土地面積:140.50㎡/ 築年数:築56年7ヶ月(1969年9月)
中古一戸建て 宍粟市 山崎町鹿沢(播磨新宮駅) 2階建 9DK 1400万円 / 9DK 兵庫県宍粟市山崎町鹿沢 JR姫新線(姫路~佐用)「播磨新宮駅」徒歩144分 建物面積:153.68㎡/ 土地面積:201.68㎡/ 築年数:築59年3ヶ月(1967年1月)
中古一戸建て 揖保郡太子町 矢田部(網干駅) 2階建 3SLDK 4200万円 / 3SLDK 兵庫県太子町矢田部 JR山陽本線(姫路~岡山)「網干駅」徒歩24分 建物面積:106.40㎡/ 土地面積:173.73㎡/ 築年数:築2年(2024年4月)
中古一戸建て 揖保郡太子町 東保(網干駅) 2階建 5LDK 1499万円 / 5LDK 兵庫県太子町東保 JR山陽本線(姫路~岡山)「網干駅」徒歩45分 建物面積:121.98㎡/ 土地面積:181.08㎡/ 築年数:築43年3ヶ月(1983年1月)
中古一戸建て 赤穂市 本水尾町(播州赤穂駅) 2階建 4DK 295万円 / 4DK 兵庫県赤穂市本水尾町 JR赤穂線「播州赤穂駅」徒歩32分 建物面積:78.57㎡/ 土地面積:182.14㎡/ 築年数:築47年2ヶ月(1979年2月)
中古一戸建て 赤穂市 朝日町(播州赤穂駅) 2階建 4SLDK 2680万円 / 4SLDK 兵庫県赤穂市朝日町 JR赤穂線「播州赤穂駅」徒歩36分 建物面積:154.54㎡/ 土地面積:238.77㎡/ 築年数:築14年10ヶ月(2011年6月)