相生市 大谷町(相生駅) 2階建 7SLDK
【見学会開催】【内外装リフォーム中】7SLDK/LDK約24帖/対面キッチン/駐車4台以上可/土地300坪・建物80坪超/水回り全て新品交換
1 / 40
価格
2,999万円
間取り
7SLDK
築年数
1987年3月(築39年3ヶ月)
土地面積
992.00㎡
所在地
兵庫県相生市大谷町
兵庫県相生市大谷町
JR山陽本線(姫路~岡山)「相生駅」徒歩37分
お問い合わせ先
(株)カチタス赤穂店
(株)カチタス赤穂店
人気のこだわり条件
アピールポイント
駐車場3台分以上、バス1坪以上、閑静な住宅街、庭10坪以上、前面棟無、隣接建物距離2m以上
周辺情報
兵庫県相生市大谷町 周辺の地図
物件概要
物件名
相生市 大谷町(相生駅) 2階建 7SLDK
交通
JR赤穂線 / 相生駅 徒歩37分
所在地
兵庫県相生市大谷町
物件種目
中古一戸建て
価格
2,999万円
借地期間・地代
(月額)
(月額)
-
権利金
-
敷金・保証金
- / -
維持費等
-
その他一時金
-
バス・トイレ
浴室乾燥機、シャワー付洗面化粧台、温水洗浄便座
キッチン
カウンターキッチン、システムキッチン、浄水器
設備・サービス
床下収納、モニター付インターホン、シャッター雨戸、出窓、クッションフロア、上水道、下水道、電気、庭、縁側、ダウンライト、照明器具、火災警報器(報知機)
その他
瑕疵保証
瑕疵保険
評価・証明書
備考
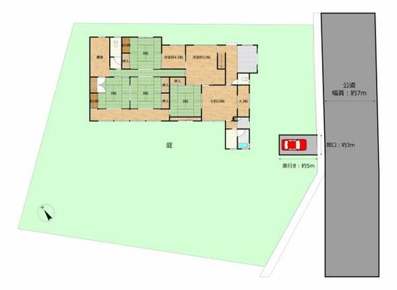
法令等制限:北西側に幅員不明の接道あり(山道)西側トイレは下水未接続です(接続費用は買主負担)。土砂災害警戒区域内。地役権設定あり。給湯器は買主負担での設置が必要です。司法書士は売主指定です。北西側に幅員不明の接道あり(山道)
建物名
相生市大谷町 戸建て
間取り
7SLDK
建物面積
275.03㎡
土地面積
992.00㎡
私道負担面積
なし
築年数
1987年3月(築39年3ヶ月)
階建 / 階
2階建
駐車場
有
建物構造
木造
土地権利
所有権
都市計画
市街化区域
用途地域
1種住居
接道状況
南東 8.5m 公道
建ぺい率
60%
容積率
150%
地目
宅地
地勢
平坦
国土法届出
-
セットバック
建築確認番号
エネルギー消費性能
-
断熱性能
-
目安光熱費
-
現況
空家
引渡可能時期
相談
取引態様
売主
物件番号
1148229211
掲載会社 管理番号
00000000636217a00830
情報公開日
2025年11月28日
次回更新予定日
2026年5月21日
この物件の取扱い会社:(株)カチタス赤穂店
安心のおうち販売実績!中古住宅を探すなら「カチタス」へ
住所
兵庫県赤穂市平成町79
地図
代表者
新井 健資
電話/FAX
0791-42-5022
交通
JR赤穂線/播州赤穂駅 徒歩23分
営業時間
9:00~18:00
定休日
毎週水曜、第一・第三・第五火曜 年末年始、夏季休暇
免許番号
国土交通大臣免許(7)第5475号
所属団体
(一社)兵庫県宅地建物取引業協会会員
(公社)近畿地区不動産公正取引協議会加盟
(公社)近畿地区不動産公正取引協議会加盟






